2024初三体育中考项目足球项目有哪些调整?足球项目的考场设置有变化吗?考试操作要求有哪些地方需要同学们注意?admw360教研组接下来就和大家分享详细情况。
2024初三体育中考项目足球项目有哪些调整?
运动能力Ⅰ(5 项)考试内容包括足球、篮球、排球、乒乓球和羽毛球 5 个项目,考生自主选择 1 项参加考试。
足球–运球\射门
(一)场地器材规格及设置要求
考试用 2 号足球门,宽 5.5 米、高 2.0 米;5 号足球,球内气压符合足球竞赛规则要求。考场统一提供符合国家标准的用球,考生不能自带球。
考试场地设置在田径场内的平整地面或独立的足球场上,场地表面为天然或人工草坪(不能为光滑的硬地),各场地之间合理设置围挡,避免互相干扰。场地设置如图所示:
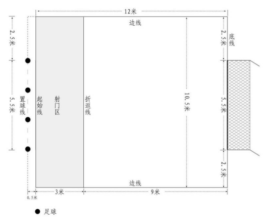
足球考试场地设置示意图
在球门前设置考试场地。球门线向两端各延长 2.5 米,作为考试区底线(10.5 米),以底线为一边,画一个长 12 米、宽 10.5 米的长方形考试区;与底线相对的边为起始线,两条长边(12 米)为边线。
在考试区内,距离底线 9 米处,画一条长 10.5 米且平行于底线的线段作为折返线;折返线与起始线间的长方形区域为射门区;距离起始线0.5 米处,画一条长 5.5 米且两端与球门平齐的线段作为置球线(在考试区域外)。
置球线两端各摆放 1 个足球,共摆放 4 个,4 个足球之间的距离相等,其中 1 个球为备用球。
(二)动作规格及考试操作要求
“运球出发至折返线—运球返回起始线—运球折返后射门”为一套完整动作组合。运球方式、射门方法不限。
考生从 4 个足球中自主确定起始用球及后续用球的顺序,在考试区内按要求完成考试。
考生听到考试信号后,站在置球线后,做好准备,发令后计时开始。同时,考生运球在起始线和折返线间往返,球触及或越过折返线(起始线)方可运球返回;第二次往返至射门区,方可射门(射门是指,球踢出后,球的整体越过考试区底线或击中球门立柱、横梁);射门后,考生跑至下一个球,继续按上述要求完成完整动作组合;前 3 个球全部射进球门,考试结束。考生完成 3 套完整动作组合后,如果进球数不足 3 个,计时不停止,必须用备用球继续完成一套完整动作组合。第 4 次射门完成后,考试结束。
考生最后一球越过考试区底线或击中球门立柱、横梁,计时停止。记录考生完成考试的时间。
每名考生可以考两次,计取较好成绩。以秒为单位记录考试成绩,保留小数点后 1 位,小数点后第 2 位数非“0”时进 1。
两次考试均犯规无成绩者,只能增加 1 次机会;仍然犯规者,该项目考试计 0 分。
(三)违反考试规则的情形及处理规定
1.考试过程中用手或手臂故意触球。
2.未在射门区内射门。
3.折返时球未触及或越过折返线。
4.折返时球未触及或越过起始线。
5.考试时,球出边线。
6.未按要求完成考试。
出现上述情形时,当次成绩无效。
第一时间获取更多升学资讯请关注微信公众号
北京全日制复读–外地回京中高考–规划答疑
咨询:010-62526900
